735 TOWER STREET S, Centre Wellington (Fergus)

2026-02-13
 

Quick Summary

Location
735 TOWER STREET S, Centre Wellington (Fergus), Ontario N1M2R2
Price
$16 CAD
Status:
For lease
Property Type:
Retail
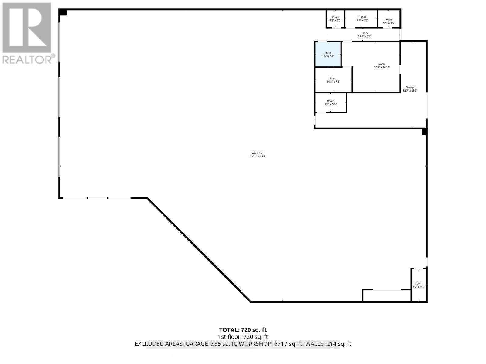
Area:
7670 sqft

MLS®#X12787016

Property Description

Fantastic opportunity for someone looking to establish or expand their business presence in a thriving area. With its prime location, ample space, and diverse potential uses permitted by its C2 zoning, it offers flexibility for various business ventures. The combination of drive-by and foot traffic in a rapidly growing community provides excellent visibility and potential for attracting customers. Moreover, having plenty of parking spaces adds to the convenience for both customers and employees. If you're interested or have any questions, reaching out for a personal tour could provide valuable insights into how this space could suit your specific business needs. It is a promising prospect worth exploring further! C2 PERMITTED USES: ANTIQUE SHOP, BUSINESS & PROFESSIONAL OFFICE, CRAFT SHOP, CLINIC, CLUB, ,, DWELLING UNITS ACCESSORY, VETERINARY CLINIC. (id:32467)

Property Features

Building

  • Cooling Type: Fully air conditioned
  • Fireplace: No
  • Interior Size: 7670 sqft
  • Utility Water: Municipal water

Zoning

  • Description: C2

Information entered by LUXE HOME TOWN REALTY INC.
Listing information last updated on: 2026-02-19 20:42:15


Book your free home evaluation with a 1% REALTOR® now!


How much could you save in commission selling with One Percent Realty?

Slide to select your home's price:

$500,000

Your One Percent Realty Commission savings

$500,000

Savings calculated using One Percent Realty's posted commission rates compared to another agent charging 5% + HST . Not all agents charge the same.

One Percent Realty's top FAQs

Q
What is the deal exactly, with One Percent?

We are a fully licensed real estate company that offers full service but at a discount commission. In terms of services and exposure, we are identical to whoever you would like to compare us with. We are on MLS®, all the top internet real estate sites, we place a sign on your property ( if it's allowed ), we show the property, hold open houses, advertise it, handle all the negotiations, plus the conveyancing. There is nothing that you are not getting, except for a high commission!

Q
What do you charge?

We charge a total of $7,950 for residential properties under $400,000. For residential properties $400,000-$900,000 we charge $9,950. For residential properties over $900,000 we charge 1% of the sale price plus $950. Plus Applicable taxes, of course. We also offer the flexibility to offer more commission to the buyer's agent, if you want to. It is as simple as that! For commercial properties, farms, or development properties please contact a One Percent agent directly or fill out the market evaluation form on the bottom right of our website pages and a One Percent agent will get back to you to discuss the particulars.

Q
Are your listings on MLS®, realtor.ca and shared across the web?

Yes, yes, and yes.


Learn more about the One Percent Realty Deal